MAÎTRISE D’OUVRAGE
Équipe
Atelier FGA : architecte
Atelier Rémi Pottier : architecte du patrimoine
IdB Acoustique : acousticien
OTEIS : BET TCE
Bibes Ergonomie : ergonomiste



Programme
Surface bâtiment : 4 180 m² / salle audition : 322 m² – 124 pl.
Ouverture plateau : 15 m / profondeur scène : 10 m
Hauteur scène : 5 m
Budget travaux : 11.6 M€ / budget scéno : 780 000 €
Réhabilitation, extension et transformation d’une caserne en un Conservatoire de musique et danse
équipe ducks
Missions
Conception scénographique (espaces et fonctionnements)
Conception et développement technique des systèmes de machinerie scénique / tribunes / fauteuils / audiovisuel
Éclairage scénique / étude des visibilités / coordination et suivi de projet / suivi de chantier et réception
Scénographie
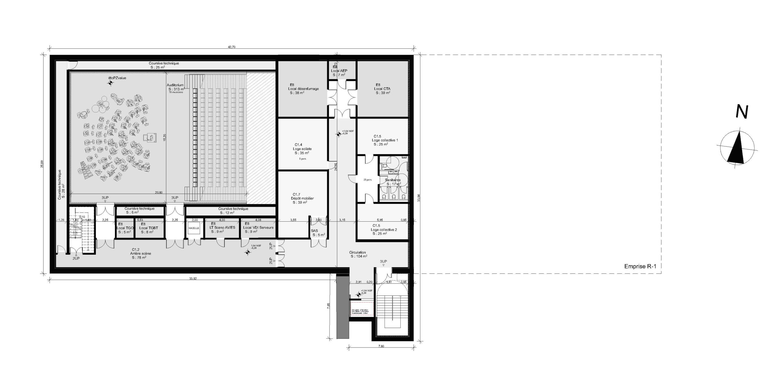
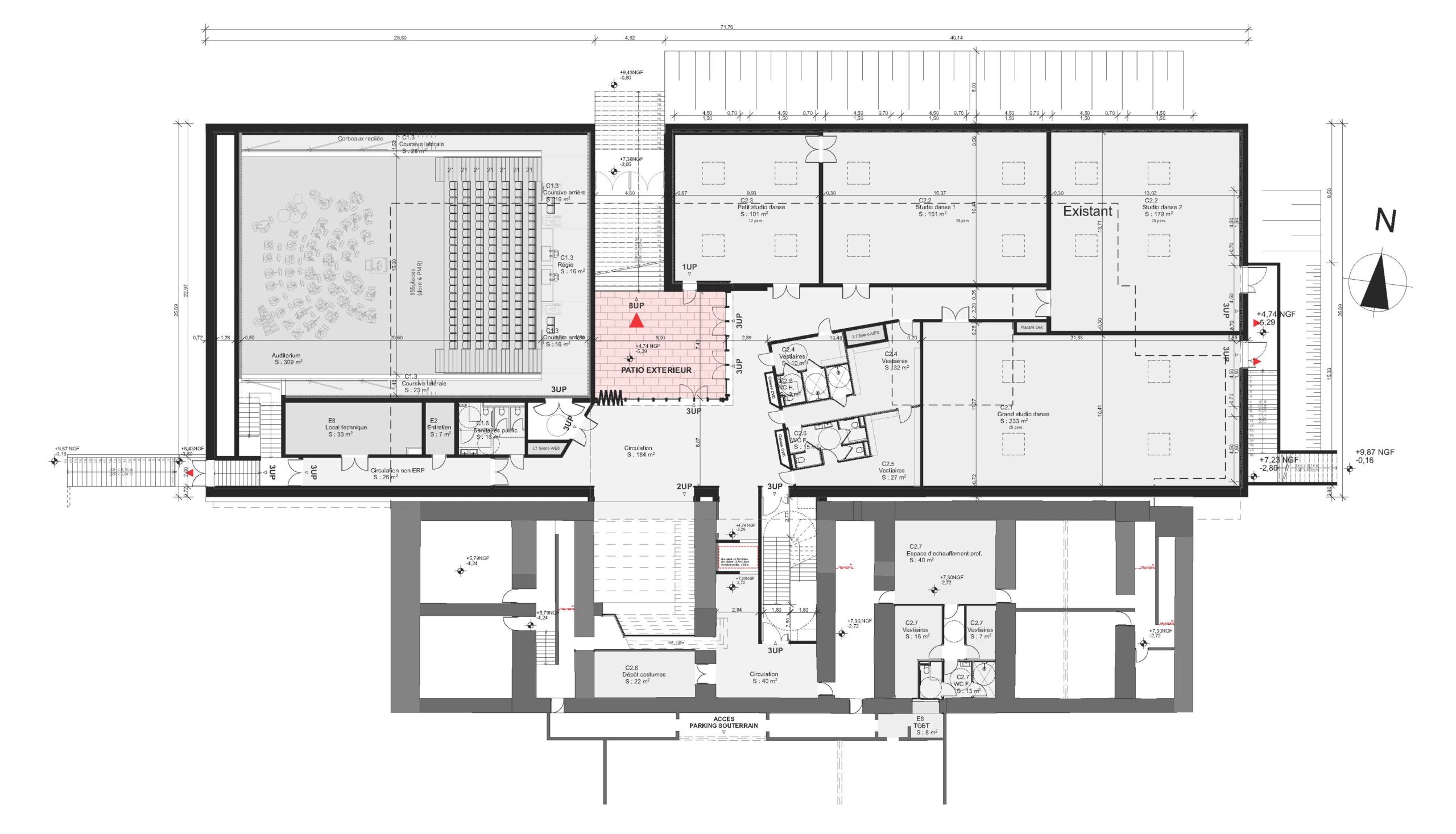
C’est dans l’ancienne caserne militaire Chasseloup-Laubat que le Conservatoire de La Rochelle trouve le siège propice à son rayonnement. Restructurer ce patrimoine en un lieu d’apprentissage dédié à la musique et la danse est un pari audacieux et passionnant. Dans cette maison partagée, élèves, enseignants et parents trouvent les conditions d’une émulation réussie. Le projet se veut humble et respectueux du site, il valorise la caserne historique en l’enrichissant d’une discrète annexe contemporaine, enterrée et végétalisée.
Cette extension en sous-sol articule la Grande salle et trois studios de danse autour d’un patio central et lumineux. Le Hall s’étend en un large gradin monumental, il conduit à la découverte du patio en offrant un espace convivial pour tous les usagers.
Tout à la fois espace de création, de diffusion ou de médiation, la Grande salle d’Audition/Répétition se veut hyper-modulable.
Son parquet de danse amortissant convient aux pratiques chorégraphiques, tout en permettant le déploiement d’une tribune lors d’auditions ou représentations publiques. Quant aux musiciens, ils bénéficient d’une acoustique adaptée et variable.
Les parois, rideaux et réflecteurs acoustiques se combinent harmonieusement avec les équipements scéniques d’accrochage et d’éclairage. Un système d’automation et des réseaux finement dimensionnés offrent un double niveau d’utilisation : Simplifié pour les élèves/professeurs, Professionnel pour les techniciens / régisseurs. Les nombreux studios de danse et d’orchestre du conservatoire offrent eux-aussi des conditions de travail idéales aux élèves. Réseaux interconnectés, miroirs, rideaux ou parquets de danse en font des espaces d’apprentissage idéal.
Missions
Conception scénographique (espaces et fonctionnements)
Conception et développement technique des systèmes de machinerie scénique / tribunes / fauteuils / audiovisuel
Éclairage scénique / étude des visibilités / coordination et suivi de projet / suivi de chantier et réception